当社で賃貸管理している物件の一部をご紹介いたします。
単身者用の間取り(1K・1R)を中心とした マンション・アパートを主に取り扱っております。
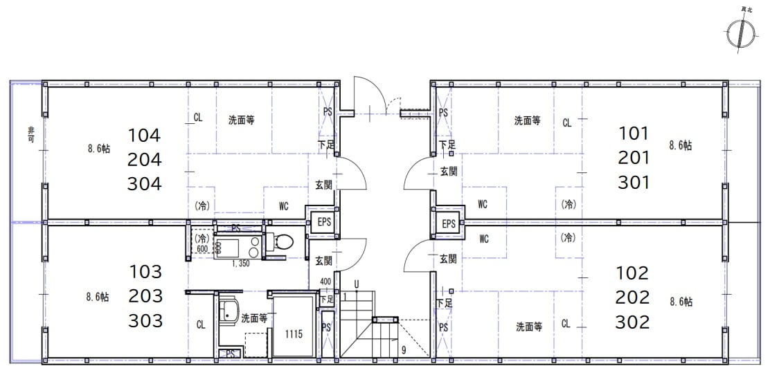
西武池袋・豊島線「練馬」徒歩11分
都営大江戸線「練馬」徒歩11分
西武池袋線・大江戸線の他に有楽町線と副都心線が乗り入れて通勤・通学に便利な練馬駅です。2024年4月完成の新築物件は、全室角部屋の8.6帖、広々とした上質の空間です。
| 所 在 | 東京都練馬区練馬2丁目 |
|
専有面積 |
27.67㎡ |
|
間取り |
1K |
|
構 造 |
木造 地上3階建 |
|
総戸数 |
12戸 |
|
築年月 |
2024年4月 |
東武東上線「下赤塚」駅から徒歩約5分
有楽町線・副都心線「地下鉄赤塚」駅から徒歩約7分
最寄駅から商店街を真っすぐの道のりです。
通勤・通学へのアクセスが良く、ALSOK導入でセキュリティ面もご安心頂けます。さらに24時間営業の大型ドラッグストアが隣接しているので、急なお買物にもとても便利です。
| 所 在 | 東京都板橋区赤塚6丁目 |
|
専有面積 |
26.19㎡~29.98㎡ |
|
間取り |
1K |
|
構 造 |
鉄筋コンクリート造 地上6階建 |
|
総戸数 |
33戸 |
|
築年月 |
2017年2月 |
東武東上線「上板橋」駅から徒歩約1分
改札南口出口から川越街道(国道254号)まで
賑やかな商店街が続いています。
駅周辺には大型スーパーやドラッグストア、
100円Shop、ファーストフード店も多数。
直ぐ近くに公園もあり、
駅近なのに自然を感じられる住宅街の一角です。
| 所 在 | 東京都板橋区上板橋3丁目 |
| 専有面積 | 23.25㎡~174.92㎡ |
| 間取り | 1K・3LDK |
| 構 造 | 鉄骨造地上3階建 |
| 総戸数 | 11戸 |
| 築年月 | 2004年3月 |
東武東上線「上板橋」駅から徒歩約9分
城北中央公園近くの小洒落た物件です。
オートロック・防犯カメラ付きで
女性の方にも安心のしてお住まい頂けます。
駐輪場・バイク置場(2台)有で
無料でご利用頂けます。
昨年には宅配Boxも導入致しました。
所 在 東京都板橋区桜川3-5-6
専有面積 18.1㎡~20.2㎡
間取り 1K
構 造 鉄筋コンクリート3階建
総戸数 10戸
築年月 2010年11月
| 種類 | 最寄り駅 | 徒歩 | 賃料 | 共益費 |
礼金・敷金 (ヶ月) |
間取 | 所在 | 詳細 |
| マンション |
東武東上線「下赤塚」駅 |
5分 | 85,000円 | 7,000円 | 1・1 | 1K | 板橋区赤塚6丁目 | 詳細はこちら |
| アパート | 東武東上線「中板橋」駅 | 4分 | 46,000円 | 2,000円 | 0・0 | 1R | 板橋区中板橋 | 詳細はこちら |
| アパート | 東武東上線「ときわ台」駅 | 10分 | 42,000円 | 2,000円 | 0・0 | 1R | 板橋区常盤台1丁目 | 詳細はこちら |
| アパート | 有楽町線・副都心線「平和台」駅 | 13分 | 43,000円 | 2,000円 | 0・0 | 1R | 練馬区北町1丁目 | 詳細はこちら |
即日ご入居頂ける物件から 退去予定の物件まで 最新情報を随時更新しております。
退去予定の物件につきましては、ご入居日のご相談に応じておりますので、お気軽にお問い合わせください。